About
Projects
FAQ
Contact
About
Projects
FAQ
Contact
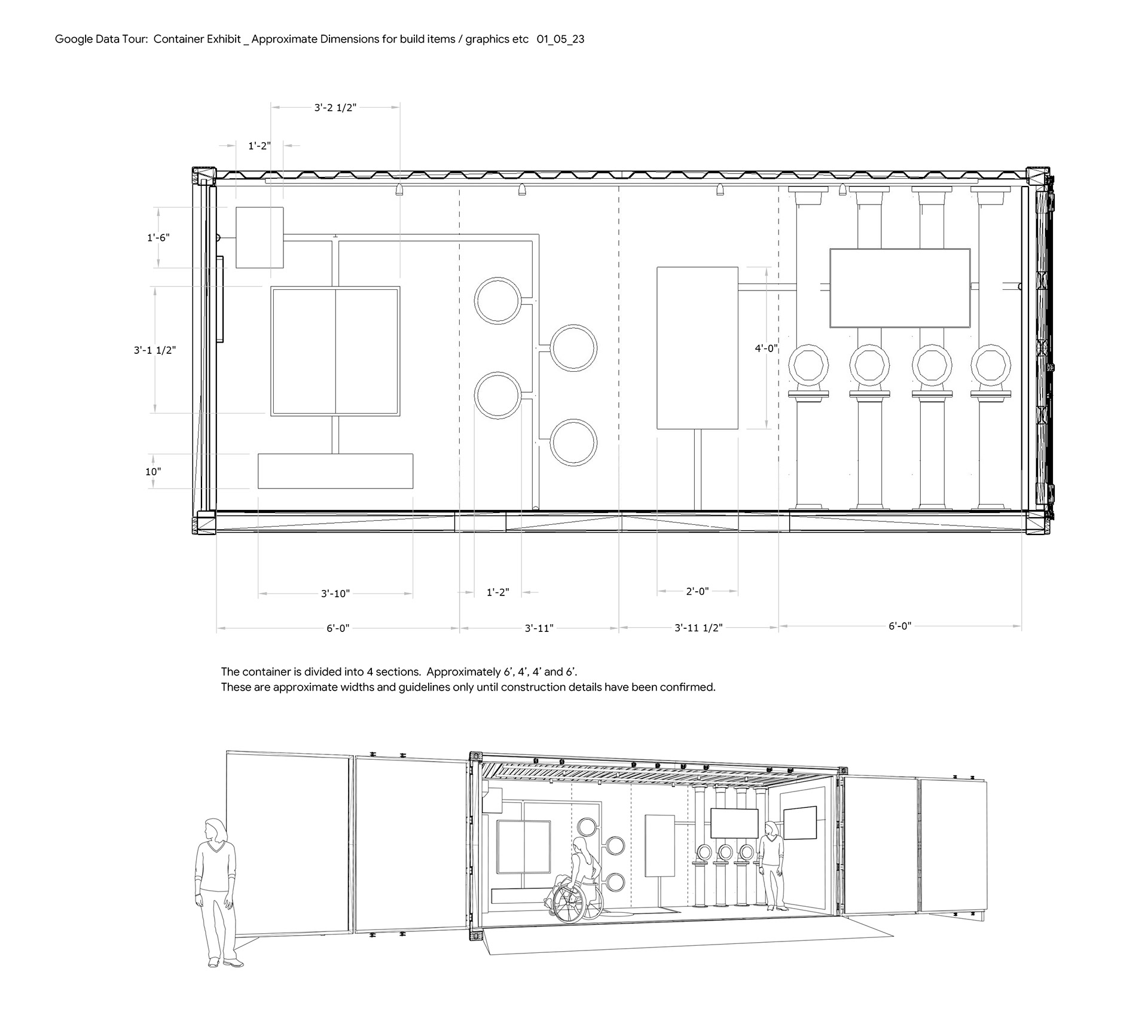
Google Data Center Tour
Google Data Center Tour 2024
Concept design and development by Steve Dennis at
Red Mountain Creative
Production Company:
Pinpoint Productions
↑
Back to Top